Kit Structură Montaj 8 Panouri Fotovoltaice pe Sol

2.250,00 RON

Kit complet de structură metalică pentru montaj 8 panouri fotovoltaice, tip portret, pe sol. Rezistent, galvanizat și ușor de instalat. Cumpără acum cu livrare rapidă din stoc!

grosime panou:
In stoc

Durata de livrare: 3-5

Limita stoc
Adauga in cos
Cod Produs: C1189 Ai nevoie de ajutor? 0748198420
Adauga la Favorite Cere informatii
  • Descriere
  • Video (1)
  • Review-uri (0)
  • FAQ

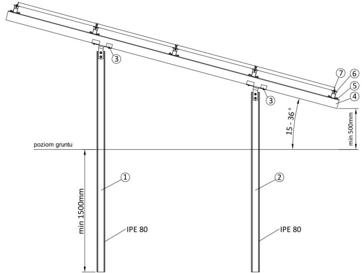
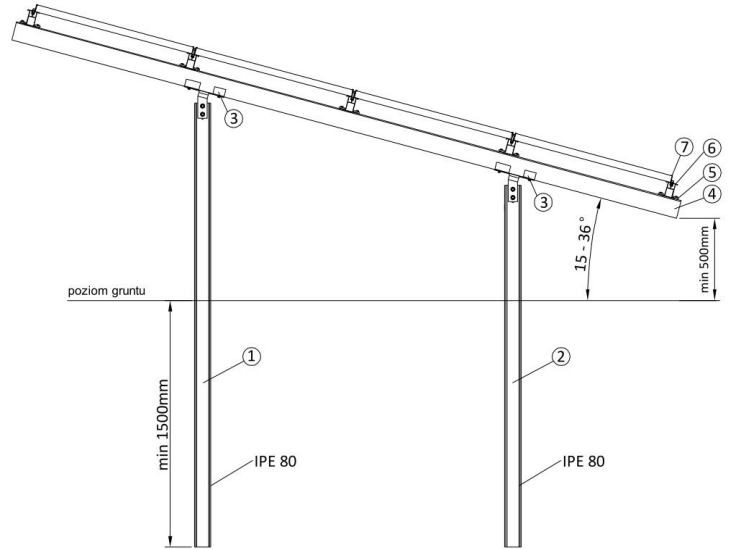
Sistem pentru montajul pe sol de 8 panouri solare ( Lățime maxima PANOU 1134 mm)
 

Sistem Complet: Kitul include toate componentele necesare pentru prinderea celor 8 module, eliminând necesitatea achiziționării separate:

  • Suport otel zincat tip C 100 mm x 2,5 mm grosime, clasa de coroziune SD 350 - 275 gr Zn/m2.

  • Profile din aluminiu de înaltă rezistență (șine).

  • Conectori/Prelungitori pentru profile.

  • Seturi complete de cleme de capăt și cleme de mijloc (intermediare) din aluminiu.

  • Șuruburi și piulițe din INOX.

Aranjare panouri solare: 2 x 4 buc
Unghi: 20, 25, 30 grade

Perimetru teren amplasament: 3,00 x 6 m 

Sistemul este compus din urmatoarele componente:

 

Termenul livrarii : 2 -4 zile

Livrarea se realizeaza cu PALEX

Vezi mai mult Informatii conformitate produs
Daca doresti sa iti exprimi parerea despre acest produs poti adauga un review.

Review-ul a fost trimis cu succes.

Ce tip de panouri fotovoltaice sunt compatibile cu această structură?

Structura este compatibilă cu majoritatea panourilor fotovoltaice standard de pe piață, cu lățime maximă de aproximativ 1134 mm, fiind potrivită pentru panouri monocristaline sau policristaline.

Ce componente sunt incluse în kitul de montaj pentru panouri fotovoltaice?

Kitul include toate elementele structurale necesare pentru instalare:

  • suporți pentru montaj pe sol
  • profile din aluminiu pentru susținerea panourilor
  • conectori pentru profile
  • șuruburi inox cu piulițe autoblocante
  • cleme de capăt pentru fixarea panourilor
  • cleme de îmbinare pentru panouri

Aceste componente asigură o fixare sigură și durabilă a panourilor în sistemul fotovoltaic

Suport clienti Luni-Vineri 8:30-16:00

0748198420 dogav.grup@gmail.com
class App extends React.Component { render() { return ( {(enabled) => ( enabled ? 'Feature is ON!' : 'Feature is off.' )} ); } }

Compara produse

Trebuie sa mai adaugi cel putin un produs pentru a compara produse.

A fost adaugat la favorite!

A fost sters din favorite!